НР5-58.29.35-4бл-1

Чертеж изделия:
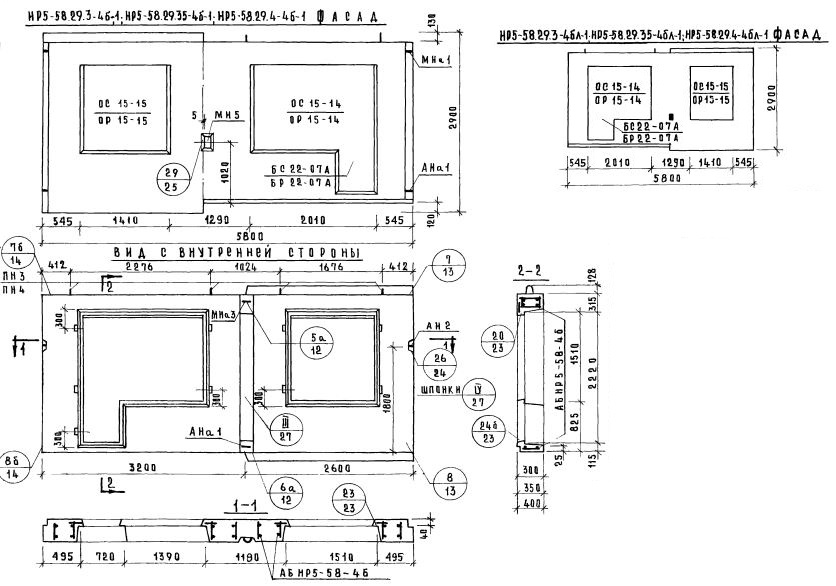
Чертеж НР5-58.29.35-4бл-1
Характеристики изделия:
ПараметрЗначение
Длина5800 мм
Ширина350 мм
Высота2900 мм
Масса5240 кг
Нормативный документСерия 1.132-1

НР5-58.29.35-4бл-1   Наружная стеновая панель рядовая по Серии 1.132-1.